

















💎PROPUNEM SPRE VÂNZARE APARTAMENT 4 CAMERE - ULTRACENTRAL EROILOR CASA MICĂ BANFFY💎
🔑APARTAMENT CU 4 CAMERE (2 DORMITOARE), ZONA ULTRACENTRALĂ A ORAȘULUI
📍Localizat pe strada Bulevardul Eroilor
✅Situat în apropierea: Teatrul și Opera Națională, Parcul Ștefan cel Mare (Parcul Operei), Catedrala Mitropolitană „Adormirea Maicii Domnului”, P-ța Avram Iancu, Muzeul de Artă, P-ța Unirii, Sora Shopping Center, Mega Image, magazine, bănci, restaurante, farmacii, stații de autobuz la o distanță mică, etc.
🖥Apartamentul este complet mobilat și utilat
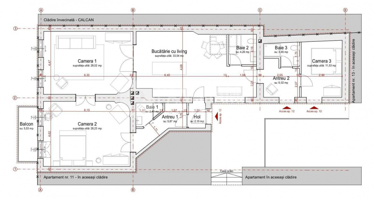
🏠Compus din: 2 dormitoare, bucătărie, living, 3 băi, 3 holuri și 1 balcon cu priveliște spre Bulevardul Eroilor
Suprafață utilă: 125 mp
🏢Nivel: Etaj 1 / 1
🚃Stațiile mijloacelor de transport în comun se afla la 2-3 minute distanță
💶Preț: 550.000€
🔴 P3835
🔑Pentru mai multe informații și pentru programarea unei vizionări, vă rugam să ne contactați telefonic!
☎️Contact: 0742069388 - ADRIAN
📬Apartamentul prezentat nu este ceea ce cauți? Contactează-ne cu încredere, iar noi îți vom face o căutare personalizată!